LIVE WORK PLAY TERRARIUM
REDEFINING HIGH RISE MIXED-USE TYPOLOGY IN SINGAPORE
- 
      
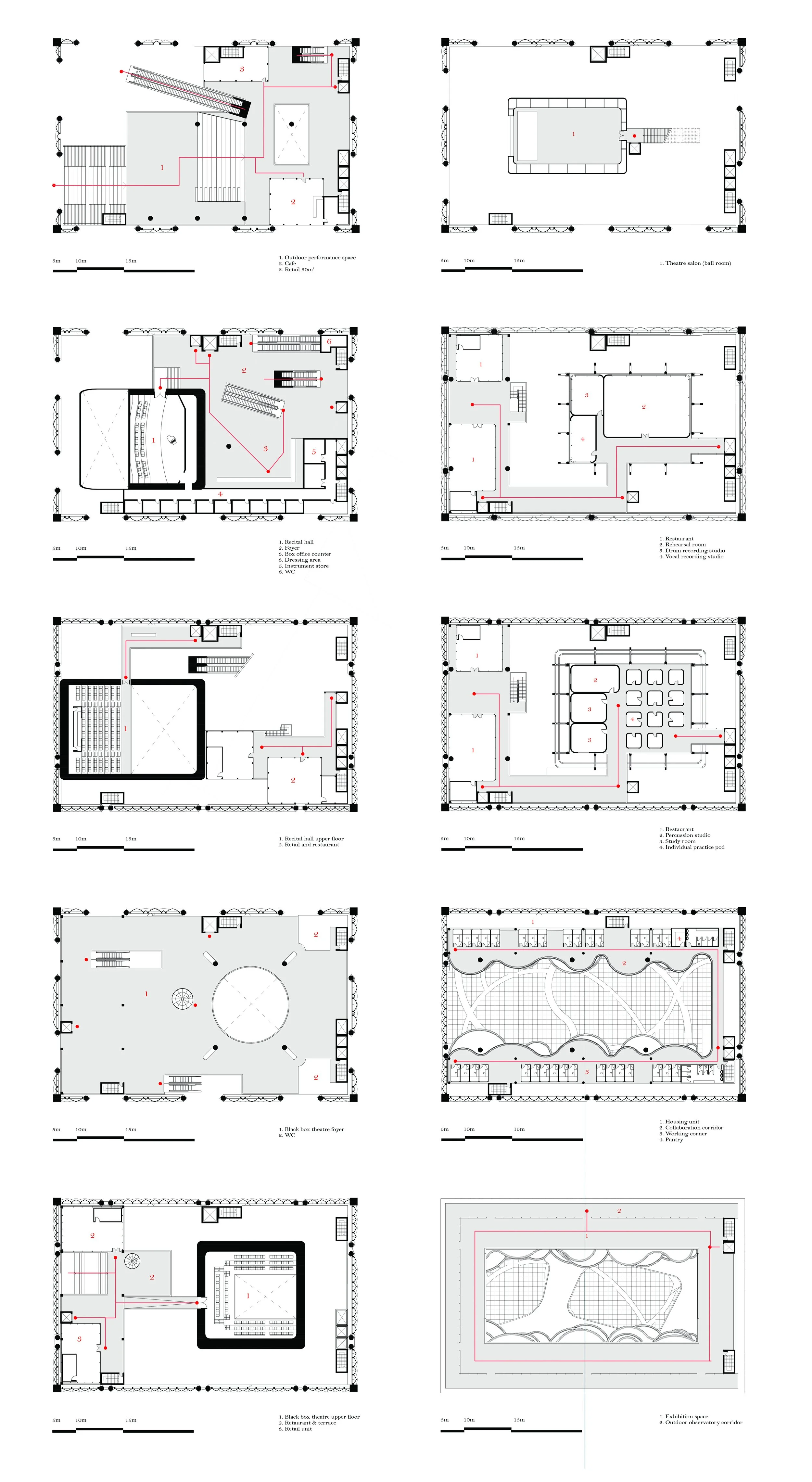
      Alike other Asia cities such as Hong Kong or Shanghai, efficiency and maximization of plot ratio are always the end goal when comes to real estate development, particularly in mixed-use building. The conventional model of mixed-use building- stratified podium-tower model is required to be rethought and reinvestigated. Based on the stratified model, commercial and public accessible spaces are often concentrated at the podium level while residential and office towers are conveniently placed on top of the podium. Hence, the interconnectivity between ground and upper storey level is always overlooked and disengaged. A vacant site at Bugis was selected as a testing ground for this project to rethink a new typology for mixed-use building which the design will neither compromise the real estate value nor spatial experience in the downtown area of land-scarce Singapore. The design seeks to overturn the conventional podium-tower model by compartmentalizing programmes into parcels and packages within a single framework. Each compartmentalized space is designed in a destination-oriented manner, with commercial and other public domains injected as supporting components to draw people to travel vertically. By taking city planning as reference for the architecture’s mobility, a vertical circulation system is arranged and situated responsively to cater different programmatical needs and to provide clear wayfinding for public visitors. Live-work-play Terrarium challenges the conventional planning model for high-rise mixed-use typology. It emphasises the internal spatial relationship- the new spatial relationship between users and programmes in a vertical perspective. 
- 
      
      TYPOLOGY: High rise PROGRAM: Cultural, Commercial & Housing LOCATION: Bugis, Singapore YEAR: 2017 STATUS: Concept 


 
             
             
             
             
             
             
             
             
             
             
             
             
             
             
             
             
             
             
             
            